GEBÄUDEVERMESSUNG
MIT 3D-LASERSCANNING
GEBÄUDEVERMESSUNG
MIT 3D-LASERSCANNING
Vom geometrischen Aufmaß von Wohnungen bis hin zur verformungsgerechten Vermessung denkmalgeschützter Objekte meistern wir jede Aufgabe auf diesem Gebiet mittels modernster 3D-Laserscanning - Technologie.
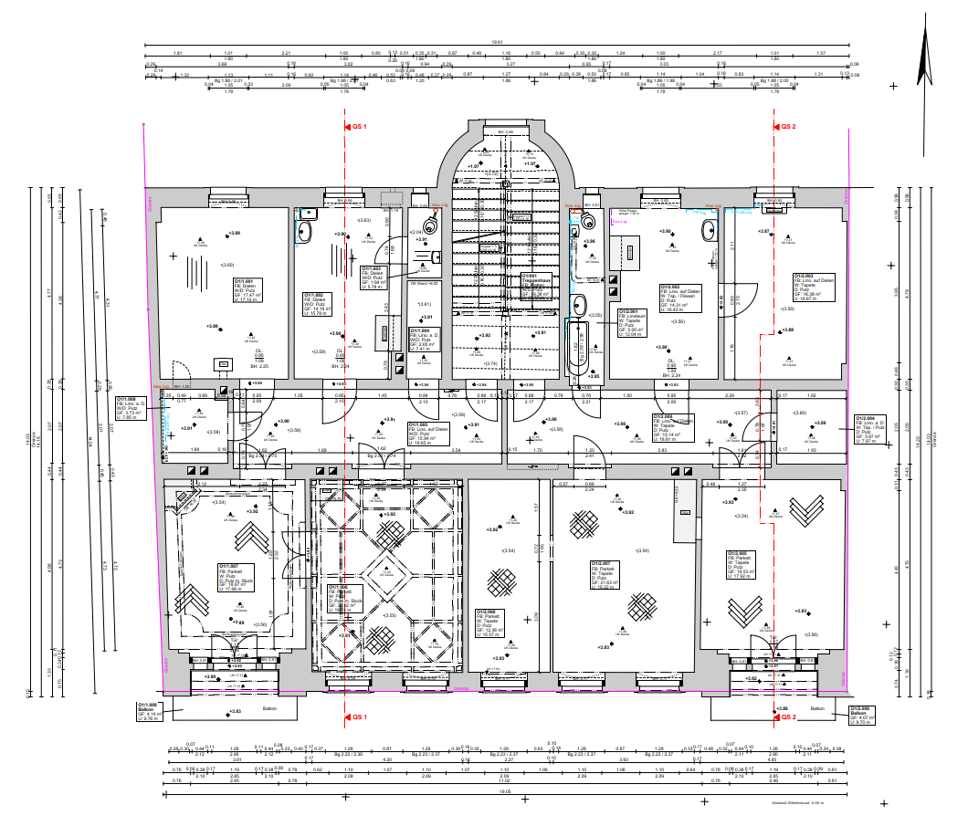
Grundrisse | Horizontalschnitte (3D-Laserscanning)
Bestehende Gebäude oder Gebäudeteile werden mit einer Vielzahl von 3D-Scans von innen und außen berührungslos und hochgenau vermessen. Die entstandene Punktwolke wird über Passpunkte georeferenziert und im CAD-System ausgewertet. So entwickeln wir für Sie Grundrisse, Ansichten oder Vertikalschnitte. Diese werden vermaßt (einschließlich Raumhöhen, Fenster-/Türhöhen und -breiten sowie Brüstungshöhen) und maßstäblich als digitaler und analoger Plan ausgehändigt.
Für Architekten und Planer besteht natürlich auch die Möglichkeit, Ihnen die gesamte georeferenzierte Punktwolke eines Objektes zu übergeben (z.B. im Fortmat *.e57), wenn Sie die Auswertung gern selber und nach eigenen Wünschen vornehmen möchten
Gern erfassen wir für Sie individuell gewünschte Einrichtungsgegenstände und Einbauteile wie Heizungen, Versorgungsleitungen oder Mobiliar und ergänzen diese entsprechend in den Grundrissen.
Ansichten | Abwicklungen |
Straßenabwicklungen
(3D-Laserscanning | Drohne)
Ansichten werden durch eine senkrechte Projektion des Gebäudes auf eine horizontale Ebene erstellt. Die Vermessung vor Ort kann sowohl punktweise mittels Tachymeter, durch Erfassung mit einem 3D-Lasercsanner als auch durch die Befliegung mit einer Drohne (UAV) erfolgen.
Auch Abwicklungen von zylindrischen Bauwerken können mit denselben Verfahren erzeugt werden. Des Weiteren werden insbesondere bei der Schließung von Baulücken sog. Straßenabwicklungen vom Bauamt gefordert, um das Einfügen in die umgebende Bebauung zu prüfen.
Vertikalschnitte (3D-Laserscanning)
Bestehende Gebäude oder Gebäudeteile werden mittels 3D-Laserscanning berührungslos und hochgenau vermessen. Die entstandene Punktwolke wird über Passpunkte georeferenziert und im CAD-System in einer definierten Höhe geschnitten. Die so entstehenden Schnitte werden vermaßt und maßstäblich als digitaler und analoger Plan ausgehändigt.
Gern erfassen wir für Sie individuell gewünschte Einrichtungsgegenstände und Einbauteile wie Heizungen, Versorgungsleitungen oder Mobiliar und ergänzen diese entsprechend in den Grundrissen.
Bauwerksvermessung | Ingenieurbauwerke (3D-Laserscanning | Drohne)
Mit Hilfe modernster 3D-Laserscanner erfassen wir kleine bis mittelgroße Ingenieurbauwerke wie Brücken, Durchlässe, Kanalbauwerke etc. hochgenau und berührungslos. Aus der georeferenzierten Punktwolke leiten wir Grundrisse, Ansichten und Vertikalschnitte der Bauwerke ab.
Insbesondere bei Ingenieurbauwerken ist eine detaillierte und genaue Messung im Vorfeld von Planungen zur Bestandserfassung notwendig. Das 3D-Laserscanning bietet das ideale Messverfahren zur Datenerfassung. Die Auswertung erfolgt auch hier in Form von analogen und digitalen CAD-Plänen.
Wohnflächenberechnung n. WoFlV und DIN 277
Abweichungen zwischen Bauausführung und Planung können sich insbesondere in den abschließenden Flächenangaben niederschlagen. Zur rechtssicheren Angabe von Flächengrößen in Kauf- und Mietverträgen führen wir ein Aufmaß aller Flächen nach Abschluss der Baumaßnahme durch und ermitteln die Wohnflächen nach den Vorgaben der Wohnflächenverordnung (WoFlV).
In digitalen Grundrissen werden die ermittelten Flächengrößen eingetragen. Jede Wohneinheit wird zur besseren Abgrenzbarkeit mit einer Flächenfüllung versehen. Sie erhalten zudem eine detaillierte Flächenberechnung für jede einzelne Wohneinheit sowie eine Aufstellung über alle Flächen des gesamten Objektes.
Flucht- und Rettungspläne
Ergänzend zum Gebäudebestandsaufmaß bieten wir die Erstellung von Flucht- und Rettungsplänen für Gebäude an, in denen dies laut Arbeits- oder Versammlungsstättenverordnung notwendig ist. Hierzu besitzen wir die entsprechende TÜV-Zertifizierung. Die Erstellung von Flucht- und Rettungsplänen auf Grundlage bereits vorhandener Pläne ist dabei ebenfalls möglich.
Insbesondere für Objekte mit großen Publikumsverkehr wie Hotels, Restaurants, Geschäfte des Einzelhandels oder Büros sind Flucht- und Rettungspläne vorgeschrieben. Diese müssen darüber hinaus stets aktuell gehalten werden und unterliegen einem zweijährigen Prüfungszyklus, damit zu jedem Zeitpunkt die notwendige Sicherheit gewährleistet ist
Aufmaß von Leitungen im Gebäude (Rohbau)
In vielen Fällen ist nicht bekannt, an welchen Stellen sich Versorgungsleitungen innerhalb eines Gebäudes befinden (z.B. Fußbodenheizung, Trinkwasser, Strom, etc.). Wir bieten Ihnen an, diese im Zuge des Baufortschritts zu erfassen, in Grundrissen einzutragen und zu vermaßen.
Damit ist es auch nach Abschluss der Bauausführung jederzeit möglich, die Lage von Leitungen mit hoher Genauigkeit und ohne Spezialgerät zu ermitteln.
photogrammetrisches Messbild | entzerrtes Orthophoto
Bei unter Denkmalschutz stehenden Gebäuden ist ein Abbruch oder eine Veränderung nur nach vorheriger Genehmigung möglich (z.B. §12 Abs. 1 SächsDSchG) . Diese wird durch die zuständige Denkmalschutzbehörde erteilt. Grundlage einer solchen denkmalschutzrechtlichen Genehmigung ist u.a. ein sog. photogrammetrisches Messbild der Fassaden.
Das photogrammetrische Messbild dient im wesentlichen der Dokumentation. Es ermöglicht auch nach Abbruch des Denkmals Maße zu entnehmen. Es ist maßstäblich und damit nicht durch eine herkömmliche Bildaufnahme ersetzbar. Zur Erzeugung werden eine Vielzahl von Einzelbildern der Fassaden mittels Spiegelreflexkamera und Drohne aufgenommen. Tachymetrisch eingemessene Passpunkte dienen der späteren Maßstabsanpassung.
Sie planen die Sanierung eines Gebäudes, wünschen die Vermessung eines Ingenieurbauwerks oder benötigen die exakte Berechnung von Wohnflächen zur Vermietung oder Verkauf, dann vereinbaren Sie einen Termin für eine persönliche Beratung oder senden Sie uns Ihr Anliegen gern per E-Mail.
Sie planen die Sanierung eines Gebäudes, wünschen die Vermessung eines Ingenieurbauwerks oder benötigen die exakte Berechnung von Wohnflächen zur Vermietung oder Verkauf, dann vereinbaren Sie einen Termin für eine persönliche Beratung oder senden Sie uns Ihr Anliegen gern per E-Mail.
Wenn Sie uns Ihr Anliegen per Mail senden, benötigen wir die Lage, eine kompakte Fotodokumentation sowie eine kurze Erläuterung Ihres genauen Vorhabens.






